
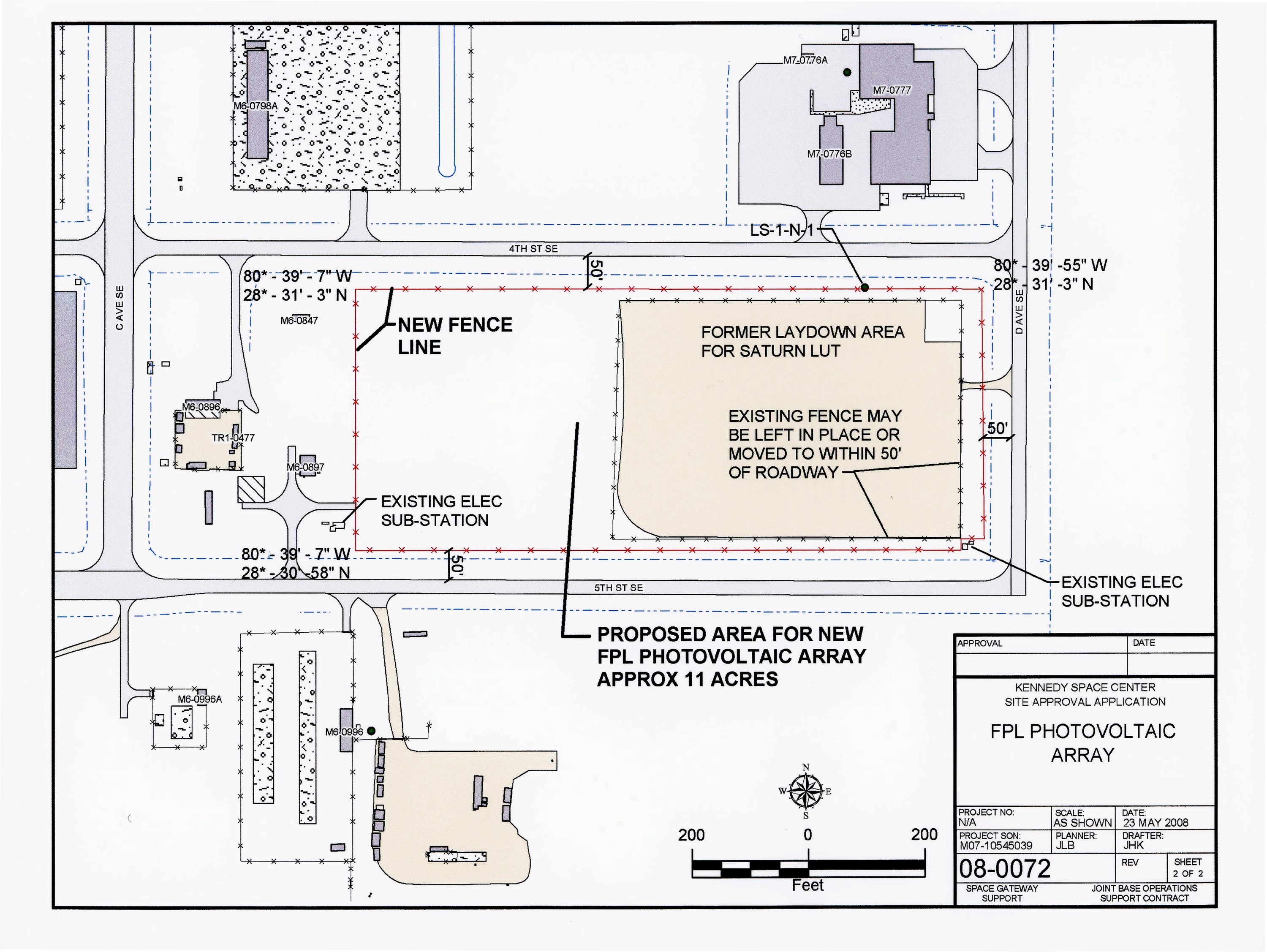
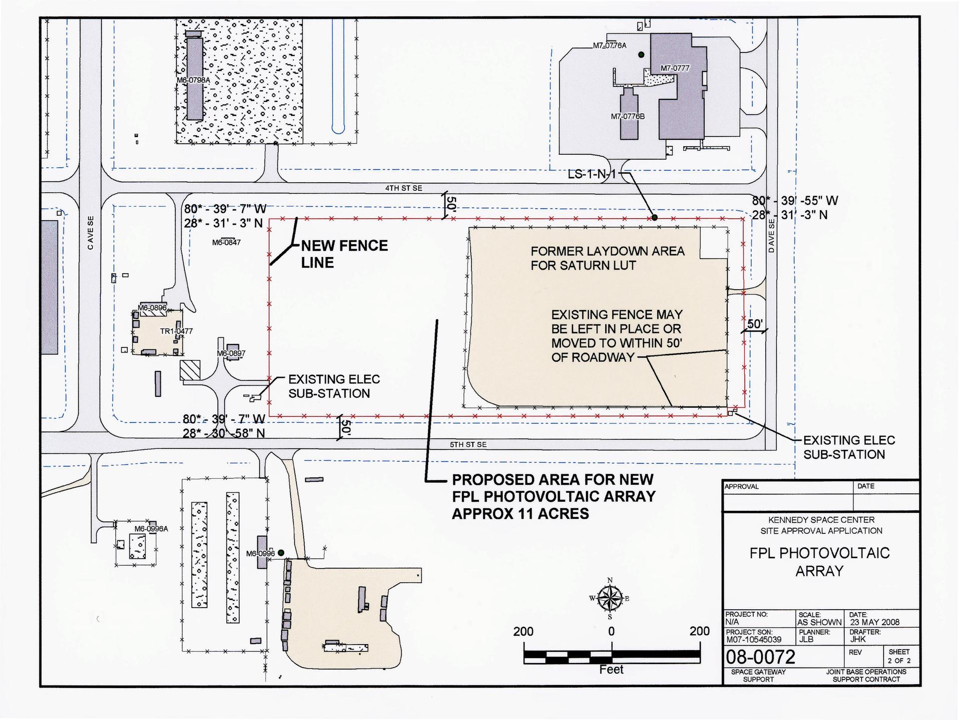
CAPE CANAVERAL, Fla. – This map shows the area within NASA's Kennedy Space Center where one of the two solar photovoltaic power generation systems will be built as the result of an agreement between NASA and Florida Power & Light. The agreement is part of a new initiative that will cut reliance on fossil fuels and improve the environment by reducing greenhouse gas emissions. The major facility will produce an estimated 10 megawatts of electrical power, which can serve roughly 3,000 homes. A separate one-megawatt solar power facility will support the electrical needs of the center.
Most NASA images are in the public domain and free to use. Credit NASA as the source. Check NASA's media usage guidelines for details. Images featuring identifiable individuals may require additional permissions.
NASA ID
KSC-08pd1835
Date Created
June 25, 2008
Center
KSC
Media Type
image
Location
Kennedy Space Center, FL
Download this image in multiple resolutions. All NASA media are free for public use.
Large
1920px